| 価格 | 1,000万円 ![]() |
||||
|---|---|---|---|---|---|
| 所在地 | 千葉県佐倉市上座
この地域周辺の物件を見る |
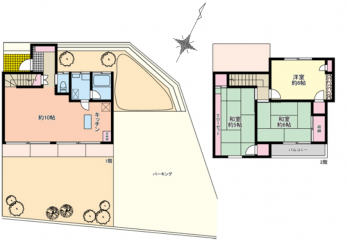
土地面積 | 88.98m² (公募) (26.92坪) | 建物面積 | 77.42u |
| 築年月 | 1974年7月築 | 間取り | 3LDK (-) | ||
| 交通 |
山万ユーカリが丘線 ユーカリが丘/徒歩4分
|
||||
電話をかける(携帯・PHS可)
047-483-2652
「ホームページを見て」とお伝え下さい。
お問い合わせ番号をお伝えください
RHS-9393834848
| 特徴 | |
|---|---|
| セールスコメント | - |
| 採光面 | - | 構造/階数 | S造/-階建 |
|---|---|---|---|
| 建ぺい率 | 50(%) | 容積率 | 100(%) |
| 駐車場 | - | 現況/引渡し | 空家/相談 |
| 土地権利 | 所有権 | 私道負担面積 | なし |
| 接道状況 | 接道: 北東 7.8m 公道 道路幅: 7.8m | 用途地域 | 第一種低層住居専用地域
|
| セットバック | なし | 法令上の制限 | - |
| 地目 | 宅地 | 地勢 | |
| 建築確認番号 | 都市計画 | 市街化区域 | |
| 小学校区 | 佐倉市立志津小学校 (千葉県佐倉市) この学区の他の物件を見る |
中学校区 | 志津中学校 (千葉県佐倉市) この学区の他の物件を見る |
| 取引態様 | 専任媒介 | ||
電話をかける(携帯・PHS可)
047-483-2652
「ホームページを見て」とお伝え下さい。
お問い合わせ番号をお伝えください
RHS-9393834848
| 年利率 | % |
||
|---|---|---|---|
| ボーナス払い | 返済年数 | ||
| 頭金 | 直接入力する | 万円 | |

毎月のご返済額 |
ボーナス(×年2回) |
物件価格1,000万円 |
電話でお問い合わせ
株式会社川島不動産
|
電話をかける 047-483-2652 ※「ホームページを見て」とお伝えください。 |
お問い合わせ番号をお伝えください RHS-9393834848 |
|---|
・契約不適合責任免責・現況渡し・引き渡し時期相談・自主管理物件・修繕積立金¥10,000円/月・専用駐車場有